Rif: 337
CHERASCO
CUNEO
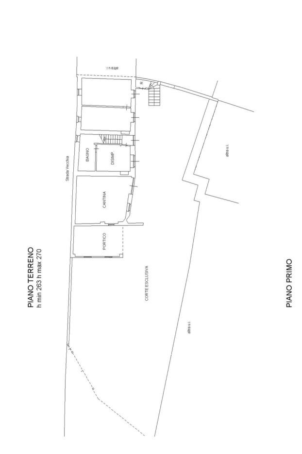
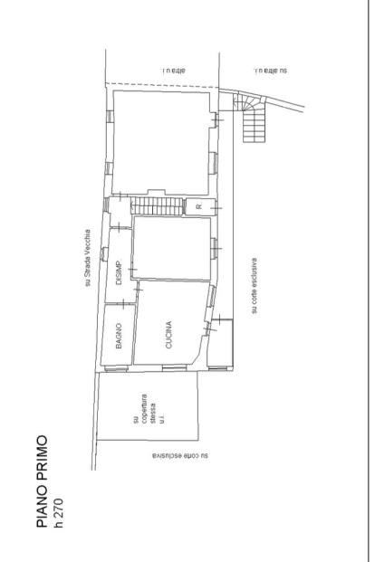
BRICCO DE FAULE In uno scenario di tranquillità e natura, in zona residenziale, porzione di cascinale indipendente ideale per chi cerca spazi esterni e il fascino della tradizione. La proprietà conserva le caratteristiche tipiche e offre ampie possibiltà di personalizzazione permettendo di modellare la casa secondo le proprie esigenze e il proprio stile, ridisegnando gli ambienti interni, valorizzando le strutture esistenti e creando spazi abitativi e versatili su misura. I porticati e le cantine offrono ulteriori potenzialità di recupero a integrazione con la parte abitativa, ideali per ampliare le superfici, realizzare zone conviviali, locali accessori, spazi dedicati a hobby e/o deposito. Zona soleggiata, aperta e con vista panoramica. Già in corso la pratica di sanatoria dell'immobile con garanzia di regolarità edilizia per l'acquirente. Soluzione adatta per chi cerca un immobile da reinterpretare, capace di unire autenticità a nuove esigenze abitative, con ampi spazi esterni e grande libertà progettuale.
Consistenze
| Descrizione | Superficie | Sup. comm. |
|---|---|---|
| Principali | ||
| Immobile - piano terra | 194 Mq | 194 Mqc |
| Accessorie | ||
| Altro - piano terra | 51 Mq | 26 Mqc |
| Altro - seminterrato | 10 Mq | 5 Mqc |
| Altro - seminterrato | 24 Mq | 12 Mqc |
| Altro - seminterrato | 9 Mq | 4 Mqc |
| Totale | 241 Mqc | |






