Rif: 219
BRA
CUNEO
BRA Proprietà d'epoca del '600 davvero unica sita in posizione privilegiata nella principale piazza del centro storico braidese. Un gioiello architettonico, in parte già ristrutturato con straordinario intervento di recupero conservativo che ha saputo rispettare il suo antico sapore, pronto per valorizzare molteplici progetti di alto livello con grande flessibilità. Lo stabile, con visibilità e prestigio garantiti, ha un secondo ingresso pedonale dalla via parallela oltre che un ampio locale commerciale di circa 200 mq con vetrine che affacciano direttamente sulla piazza garantendo investimento a reddito sicuro e redditizio. La presenza di ingressi multipli permette di organizzare gli spazi in modo flessibile, adattandosi a diverse esigenze funzionali e progettuali. Inoltre, una parte dello spazio esterno è adibita a parcheggi, magazzini e alle attività di carico e scarico, rendendo la proprietà ancora più pratica e funzionale. La superficie di circa 1700 mq, suddivisa tra varie destinazioni d'uso, tra cui residenziale e commerciale, rende l'intero fabbricato un'opzione ideale per investitori e società alla ricerca di un immobile di alta rappresentanza nel cuore del Roero e alle porte delle Langhe. L'indirizzo, l'unicità dell'immobile e i dettagli originali d'epoca quali lo scalone centrale, gli infissi e il parquet, rendono questa soluzione una rara e imperdibile opportunità anche per chi ricerca soluzioni ricettive, culturali o per banche.
Una dimora in cui l'eleganza si fonde armoniosamente con la funzionalità, creando un ambiente di vita esclusivo e indimenticabile.si trova in una posizione privilegiata
Una dimora in cui l'eleganza si fonde armoniosamente con la funzionalità, creando un ambiente di vita esclusivo e indimenticabile.si trova in una posizione privilegiata
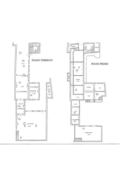
Consistenze
| Descrizione | Superficie | Sup. comm. |
|---|---|---|
| Principali | ||
| Immobile - 2° piano | 140 Mq | 140 Mqc |
| Immobile - 2° piano | 140 Mq | 140 Mqc |
| Magazzino - piano terra | 315 Mq | 315 Mqc |
| Immobile - 3° piano | 79 Mq | 79 Mqc |
| Immobile - 3° piano | 80 Mq | 80 Mqc |
| Immobile - 3° piano | 73 Mq | 73 Mqc |
| Immobile - 1° piano | 186 Mq | 186 Mqc |
| Immobile - 1° piano | 196 Mq | 196 Mqc |
| Negozio - piano terra | 214 Mq | 214 Mqc |
| Altro - 1° piano | 135 Mq | 135 Mqc |
| Immobile - 1° piano | 206 Mq | 206 Mqc |
| Totale | 1.764 Mqc | |






